3811 NS Amersfoort
A++

Weltevreden 101

€ 750.000,- k.k.

Uitgelichte kenmerken

166 m2 woonoppervlakte
75 m2 perceeloppervlakte
6 kamers
Bekijk alle kenmerken

Omschrijving

VISIE OPEN HUIS DAG – ZATERDAG 13 DECEMBER 2025
Loop tussen 11:00 – 14:00 uur eens vrijblijvend binnen om een goede indruk te krijgen van deze woning!

Welkom bij Weltevreden 101 in Amersfoort – een woning die je keer op keer weet te verrassen. Dit is geen standaard huis, maar een speelse splitlevelwoning, waar iedere trap je naar een nieuwe ontdekking brengt. De indeling is anders dan je gewend bent en dat maakt het wonen hier juist zo bijzonder. Je hebt overal verrassende hoekjes, doorkijkjes en plekken om tot rust te komen. Tegelijkertijd is er volop ruimte voor een gezin of voor wie thuis werken en wonen graag combineert.
De woning ligt aan een gezellig plein met een gezamenlijke binnentuin, waar buren elkaar ontmoeten, kinderen veilig spelen en je een gevoel van geborgenheid hebt: rustig, groen en sfeervol. Je hebt niet de indruk dat je dicht bij het bruisende centrum bent, maar toch wandel binnen een paar minuten naar de gezellige binnenstad van Amersfoort, met al zijn winkels, terrassen en cultuur. Ook station Amersfoort Centraal is gemakkelijk lopend te bereiken.

Koken, tafelen en samen genieten
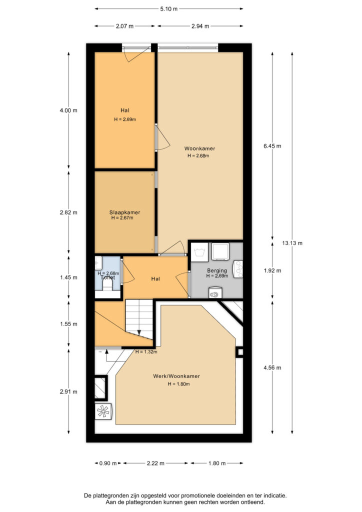
Bij binnenkomst merk je het meteen: dit huis heeft karakter en een speelse indeling die je nieuwsgierig maakt naar wat er nog meer komt. Via de hal stap je rechts de keuken in, gelegen aan de voorzijde. Het keukenblok in hoekopstelling is praktisch en compleet, voorzien van inbouwapparatuur die koken makkelijk en plezierig maakt. Denk aan een kookplaat met afzuigkap, een vaatwasser en volop werkruimte om uitgebreid te kokkerellen. De hoge kastopstelling biedt nog meer comfort met een koel-vriescombinatie, oven, magnetron en een handige apothekerskast.
In de keuken vind je ook de eetruimte. Hier heb je de perfecte plek voor lange avonden tafelen met vrienden of gezellige ontbijtjes met uitzicht op de binnentuin. Dankzij de grote ramen is het hier heerlijk licht. Een paar treden omhoog kom je in de woonkamer: een aangename, lichte ruimte met schuifpui naar buiten. Hier creëer je je eigen knusse zithoek om te ontspannen, series te kijken of met een boek weg te dromen. Het doorbreken van de niveaus geeft de ruimte een speelse en open sfeer.

Slim slapen en stijlvol baden
De volgende trap leidt naar de eerste slaapkamer van de woning. Lekker ruim, voorzien van een praktische inbouwkast en zelfs een inloopkast voor al je kleding. Dankzij de vide ontstaat er een slimme indeling: boven je bed, beneden je bureau. Ideaal voor een werkplek of een rustige studiehoek.
De badkamer ligt naast deze slaapkamer en straalt rust en comfort uit. Door de hoge plafonds voelt de ruimte extra groot en licht. Je vindt er een ligbad voor ontspannende avonden, een inloopdouche voor een frisse start van de dag, een strak wastafelmeubel en een designradiator. Hier heb je alles bij de hand om comfortabel te genieten van je dagelijkse routines.

Twee gezellige slaapkamers met vide
Ga je nog een trap verder, dan kom je bij de volgende twee slaapkamers die bijna identiek zijn qua grootte en uitstraling. Beide kamers hebben een gezellige en speelse sfeer dankzij de vide. Ook hier kun je boven prima slapen en beneden de ruimte benutten voor een bureau of kasten. Perfect voor kinderen die hun eigen plek willen inrichten of als logeerkamer en hobbyruimte. De mogelijkheden zijn eindeloos. Op de overloop vind je bovendien een tweede toilet, wel zo praktisch voor deze verdieping.

De extra benedenverdieping – jouw eigen verrassing
Wat dit huis écht uniek maakt, is de extra verdieping beneden. Hier tref je een grote, multifunctionele ruimte die nu als werk- en slaapruimte in gebruik is, maar waar je alle kanten mee op kunt. Denk aan een master bedroom met eigen sfeer, een zelfstandige woonunit voor een ouder kind of juist een kantoor, atelier of praktijkruimte aan huis.
In de hoek is slim ruimte gemaakt voor een tweepersoonsbed en aan de achterzijde is een berging met achterdeur naar buiten. Fietsen, sportspullen of tuinmateriaal kun je hier zonder moeite kwijt. Dankzij de flexibiliteit van deze benedenverdieping heb je een huis dat met je meegroeit en zich aanpast aan je wensen.

Terras, berging en parkeren
Onder de trap aan de voorzijde ontdek je nóg een verrassende ruimte. Momenteel wordt deze gebruikt als berging en chillplek, maar je kunt hem eenvoudig inrichten als gameroom, speelruimte of creatieve studio. Een plek die je niet verwacht, maar die je stiekem nooit meer wilt missen.
Via de schuifpui in de woonkamer loop je zo het ruime terras op. Heerlijk gelegen op het zuidwesten, waardoor je de zon optimaal meepakt. Of je nu buiten wil ontbijten, de middagzon wil zoeken of juist wil genieten van een lange zomeravond, hier zit je goed. Wordt het toch te warm, dan zorgt het zonnescherm over de hele breedte voor de nodige schaduw. Doordat het terras hoger ligt, kijk je lekker vrij weg en ervaar je een gevoel van ruimte en privacy.
Parkeren doe je gemakkelijk op je eigen vaste plek in de ondergrondse parkeergarage. Zo ben je altijd verzekerd van een parkeerplaats dichtbij huis.

Uitstekende locatie
Een uitstekende locatie aan de gewilde zuidkant van het centrum, tegen het Bergkwartier aan. Het plein en de binnentuin creëren een fijne, rustige sfeer met een echt buurtgevoel. Je kinderen kunnen letterlijk voor de deur spelen in de speeltuin, terwijl jij vanuit huis een oogje in het zeil kunt houden. Tegelijkertijd sta je binnen no-time in de bruisende binnenstad voor een hapje, drankje of een dagje winkelen.
Met scholen, sportclubs, winkels, openbaar vervoer en uitvalswegen vlakbij heb je hier de perfecte mix van rust en levendigheid. Het voelt als een oase van rust, zonder dat je inlevert op bereikbaarheid. En dat maakt wonen op Weltevreden zo bijzonder.

Bijzonderheden
• Bouwjaar: 2009
• Energielabel A++
• 13 zonnepanelen
• Splitlevelwoning met verrassende indeling
• Drie slaapkamers met vide en slimme indeling
• Extra benedenverdieping met multifunctionele mogelijkheden (bijvoorbeeld vierde slaapkamer)
• Terras op het zuidwesten met vrij uitzicht
• Eigen parkeerplek in de garage, dichtbij de lift
• Gezellig plein met binnentuin en speeltuin voor de deur
• VvE bijdrage parkeergarage € 51,- per maand

Ben jij klaar voor een huis dat je blijft verrassen en inspireren? Plan vandaag nog een bezichtiging en laat je verleiden door de unieke charme van Weltevreden 101!

Kenmerken

Overdracht
Prijs € 750.000,- k.k.
Status Beschikbaar
Aanvaarding In overleg
Bouw
Type object Woonhuis
Soort Eengezinswoning
Type Tussenwoning
Woonoppervlakte 166 m2
Energie
Energielabel A++
Isolatie Dakisolatie, Muurisolatie, Vloerisolatie, Dubbelglas, HR glas
Verwarming CV ketel
Warm water CV ketel
Oppervlakten en inhoud
Woonoppervlakte 166 m2
Perceeloppervlakte 75 m2
Inhoud 717 m3
Garage oppervlakte 12 m2
Bergruimte oppervlakte 0 m2
Tuin oppervlakte 16 m2
Buitenruimte
Ligging In centrum, In woonwijk
Tuin Zonneterras
Zonneterras 16 m2 (2,96 meter diep en 5,36 meter breed)
Ligging tuin Zuidwest

Leuk dat je deze woning bekijkt.

Waarmee kunnen wij je helpen?
Bel Visie Makelaardij Plan een afspraak
Deel deze woning via:

Locatie

Plan een afspraak